The Cross, Church Hill, Bramhope

SSTC £239,950

The Cross, Church Hill, Bramhope

£239,950

3
1
1

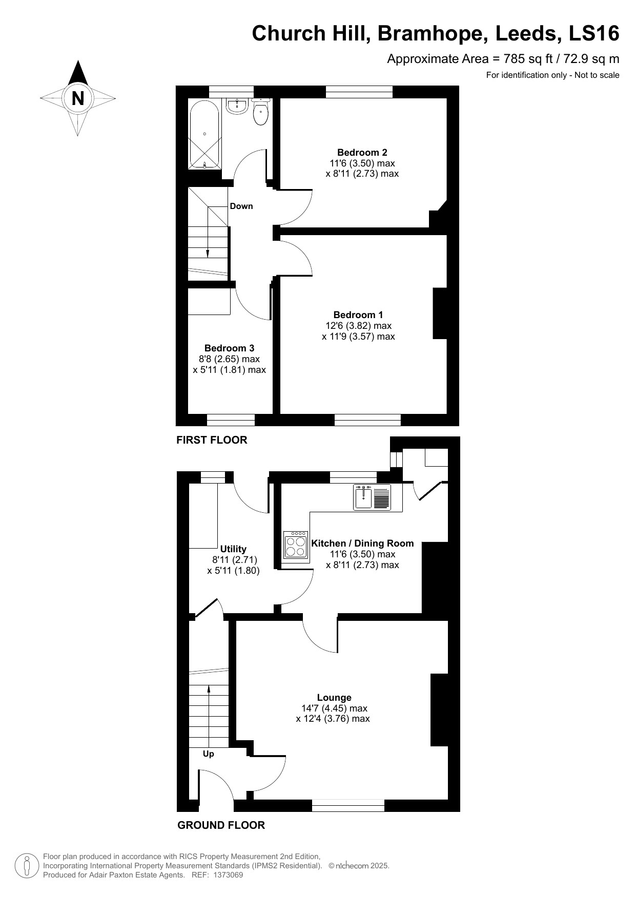
*THREE BEDROOM MID-TERRACED HOUSE - NO ONWARD CHAIN** Adair Paxton are pleased to offer to the market this three bedroom mid terrace house full of charm and character, in the heart of the beautiful and popular village of Bramhope. Just a short stroll to the famous "Fox and Hounds" pub and other local amenities, this lovely property briefly comprises; Hallway, living room, kitchen and utility to the ground floor. To the first floor there are three bedrooms and a house bathroom. Externally the property has a lawned garden to the front, a courtyard style garden to the rear and on street parking. Council Tax Band D. EPC rating D.

Tenure: Freehold

Council Tax Band: C

Location

Floorplan

Floorplan

EPC

EPC for The Cross, Church Hill, Bramhope

Selling your home? Book a valuation.

Book a valuation with Adair Paxton today

Book a Valuation

Can't find what you're looking for?

Register for property alerts or contact our team to discuss your requirements.

Register for Alerts Contact Us

Similar Properties

Grove Farm Crescent, Cookrige
For Sale

Grove Farm Crescent, Cookrige

£245,000
2
1
View Property
Spen Road, West Park, Leeds
For Sale

Spen Road, West Park, Leeds

£550,000
View Property
Green Meadows, Eccup Lane.
For Sale

Green Meadows, Eccup Lane.

£1,150,000
4
2
View Property