Green Meadows, Eccup Lane.

£1,150,000

Green Meadows, Eccup Lane.

£1,150,000

4
3
2

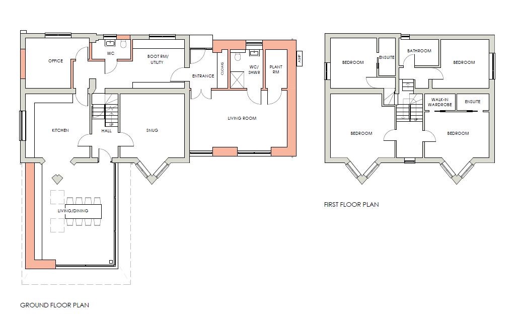
***DELIGHTFUL FOUR BEDROOM DETACHED STONE BUILT RESIDENCE, SET IN THIS STUNNING SEMI-RURAL LOCATION with NO ONWARD CHAIN***PLANNING PERMISSION APPROVED FOR GROUND FLOOR EXTENSION*** Situated in substantial formal gardens, Green Meadows A beautifully positioned four-bedroom stone residence with rare approved planning permission to significantly enhance ground-floor living, set within generous gardens and open countryside. Planning has been approved for a high-quality transformation that is rare to secure in this Green Belt setting. Consent has been granted for two substantial single-storey extensions, including the potential for a generous kitchen/diner opening onto the garden and a further flexible living space or bedroom with bathroom and storage, alongside a substantial double carport with additional storage. Together, the scheme creates a cohesive and energy-efficient home, while future-proofing the property with provision for solar PV, EV charging and the opportunity to move away from LPG heating. This is a rare opportunity to acquire a beautiful rural home with planning in place to create a refined long-term family house. Ideally located with easy access across North Leeds, this property suits anyone looking for semi-rural accommodation whilst maintaining all of the facilities, road networks and access to the airport. The majority of the house has recently been renovated by the current owners to offer modern accommodation throughout and briefly comprises; two generous sized reception rooms, spacious conservatory/garden room, open plan kitchen/diner and utility room to the ground floor. To the first floor there is a master bedroom with en-suite shower room, second double bedroom with an en-suite shower room, two further double bedrooms and a house bathroom. The property has been well maintained and the grounds are immaculate.

Tenure: Freehold

Council Tax Band: F

Location

Floorplan

Floorplan Floorplan

EPC

EPC for Green Meadows, Eccup Lane.

Selling your home? Book a valuation.

Book a valuation with Adair Paxton today

Book a Valuation

Can't find what you're looking for?

Register for property alerts or contact our team to discuss your requirements.

Register for Alerts Contact Us

Similar Properties

Grove Farm Crescent, Cookridge
For Sale

Grove Farm Crescent, Cookridge

£235,000
2
1
View Property
Spen Road, West Park, Leeds
For Sale

Spen Road, West Park, Leeds

£550,000
View Property
Briar Cottage, Holland Mount, Bramhope
For Sale

Briar Cottage, Holland Mount, Bramhope

£245,000
3
1
View Property